Jordan River Boathouse
Inspired by a growing community of sculling in Salt Lake, the Jordan River Boathouse is a set of buildings promoting recreation and appreciation on the Jordan River. Nestled between the urban infrastructure of a light rail bridge and a freeway overpass, the boathouse descends to create refuge along the waters edge. One facility caters to water sports, particularly the training and equipment storage for sculling, while its opposite is a way station for joggers, cyclists and spectators along the Jordan River Parkway.
Site Circulation & Spatial Analysis
BoathousE & EXERCISE facilities
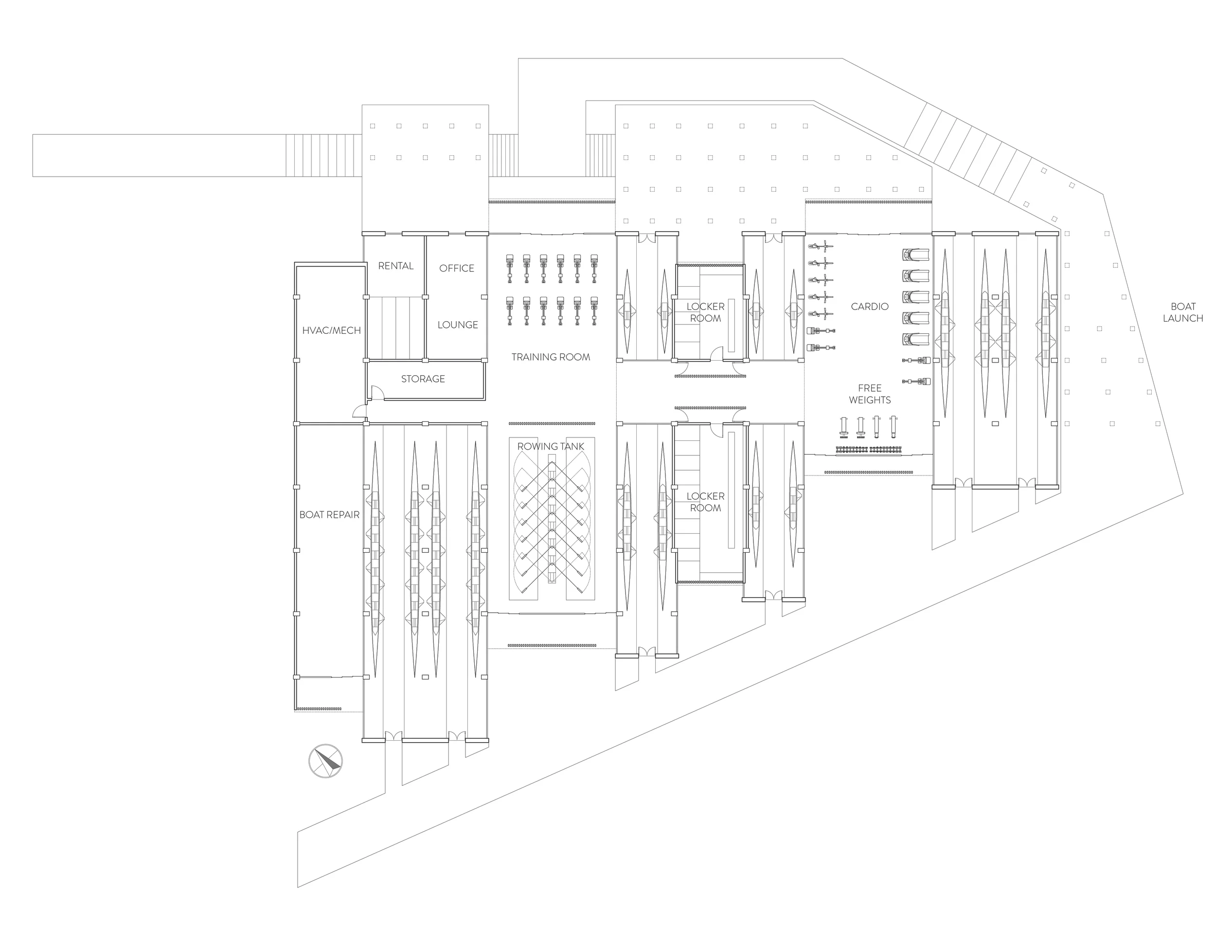
Boathouse Floorplan
Exploded Axonometric




Elevation & Section
Ink & Marker Sketch
Gallery & Rental Facilities
Event Hall Floorplan
Exploded Axonometric


